Villa singola in vendita

Motta Visconti, Via Giuseppe Verdi
€ 219.000
4 locali 4 locali
140 Mq 140 Mq
2 bagni 2 bagni

Villa singola in vendita

Motta Visconti, Via Giuseppe Verdi

Descrizione annuncio

VILLA SINGOLA LIBERA SU 4 LATI CON AMPIO GIRARDINO, TAVERNA E BOX!

Via Verdi – Motta Visconti(MI). A pochi passi dal centro cittadino, proponiamo VILLA singola libera su quattro lati con ampio giardino, box e taverna.

La zona è tranquilla e ben servita, fornita di tutti i servizi di prima necessità come supermercati, farmacie, scuole, poste, bar e ristoranti.
La zona risulta un ottimo compromesso per chi desidera vivere a breve distanza dalla città metropolitana milanese ed in uno dei comuni verdi dell'hinterland. La qualità della vita è alta e non mancano i servizi, ciò contribuisce a rendere questi paesi la meta preferita dalle famiglie in cerca di tranquillità e sicurezza per i propri figli.

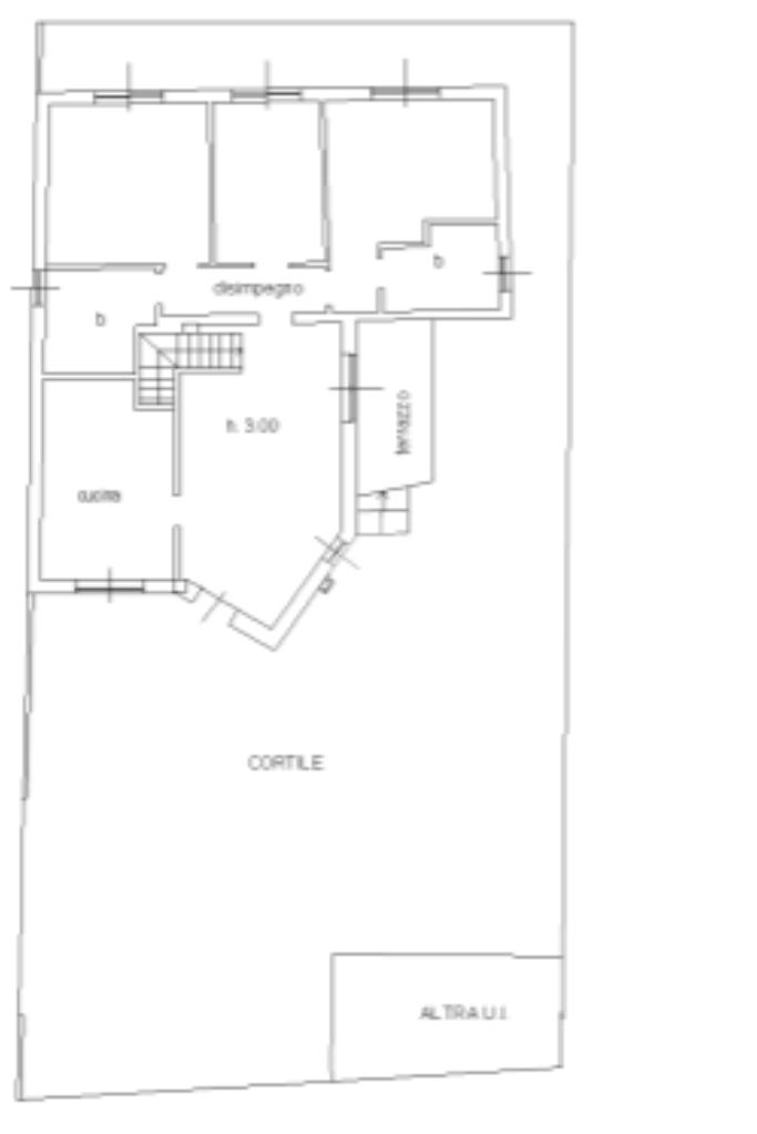
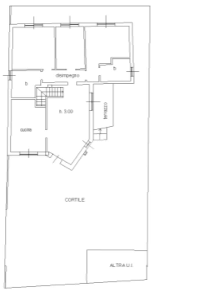
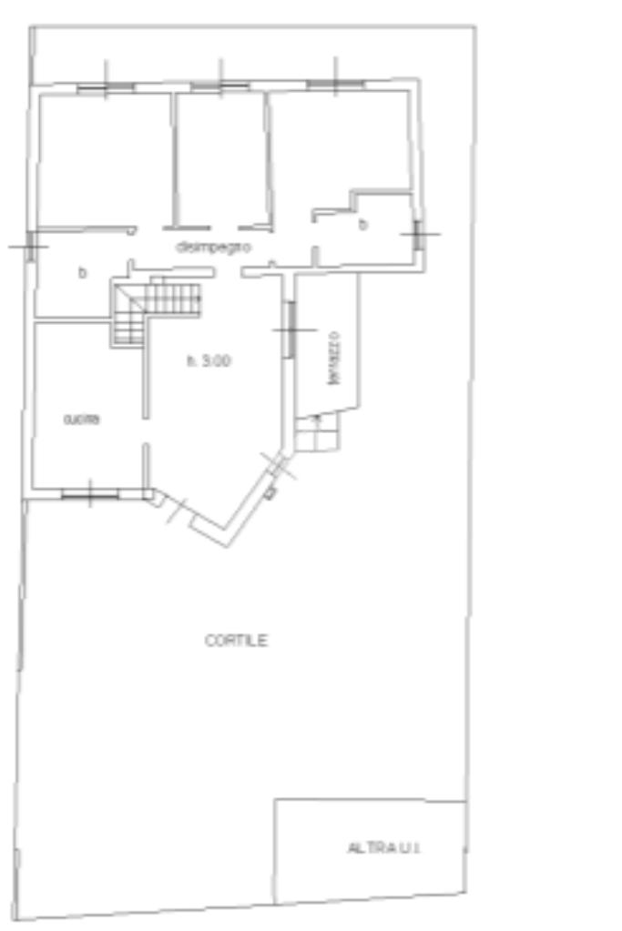
L’immobile è composto da: ingresso diretto nell’ ampio soggiorno con doppio punto luce, subito sulla sinistra accediamo alla cucina angolare abitabile finestrata. Procedendo, mediante disimpegno, si accede alla zona notte caratterizzata da: due camere da letto matrimoniali con punto luce con affaccio sull’ interno sul giardino, bagno finestrato con box doccia, ed infine, camera da letto matrimoniale con bagno in suite con vasca.

Il piano seminterrato, dal quale si accede mediante una comoda scala, infine, è composto da una comoda lavanderia ed un ‘ampia taverna con bocche di lupo.

Completa la proprietà un comodo box auto.

L’immobile si presenta in buone condizioni interne, infissi in legno con doppi vetri, inferiate, zanzariere e porta blindata, split di aria condizionata.

Riscaldamento autonomo a pavimento.

Soluzione ideale per famiglie grazie all'ottimo contesto ed alla tranquillità della zona.

Le immagini pubblicate sono state ritoccate con l'aggiunta di mobili a scopo illustrativo e non costituiscono un'offerta contrattuale.

OGNI AGENZIA HA UN PROPRIO TITOLARE ED E' AUTONOMA. Le Info non sono contrattuali.

Mostra tutto

Nelle vicinanze

Trasporto pubblico Trasporto pubblico
Via Soriani, (Motta Visconti)
Via Soriani, (Motta Visconti)
440 m
Via De Gasperi - Via Borgomaneri (Motta Visconti)
Via De Gasperi - Via Borgomaneri (Motta Visconti)
450 m
Scuole Scuole
Scuola Secondaria di Primo Grado Scotti
310 m
Istituto Comprensivo Statale Ada Negri
370 m
Farmacia Farmacia
Farmacia Mariani
410 m
Parafarmacia Muzzio
440 m
Farmacia
600 m
Ospedali Ospedali
ospedale C. Mira
2,5 Km
Supermercati Supermercati
Simply
840 m
Conad
2,1 Km
Negozi Negozi
il Vecchio Forno
260 m
La Bottega Simply
270 m
Panetteria Pasticceria Conti
440 m
Negozi
460 m
Il Forno
3,0 Km
Bar Bar
Bar Kandinsky
320 m
Bar
410 m
Dance Cafè
430 m
Bar Sant'Anna
450 m
Bar Centrale
470 m
Ristoranti Ristoranti
Stuzzipizza
300 m
Antica trattoria dell'isola
360 m
Pizze Nico
480 m
Bella Napoli 3
490 m
Pizze Cersi
570 m
Mostra tutto

Caratteristiche

Rif.:
61118176
Piano:
Terra di 1
Totale piani:
1
Box:
1
Camere da letto:
3
Arredamento:
Assente
Mostra tutto
Prezzo Prezzo
€ 219.000
Rata mutuo Rata mutuo
€ 1.012 / mese
Spese annue Spese annue
€ 0
Proponi il tuo prezzoProponi il tuo prezzo

Classe Energetica

F
F
F
F
F
F
F
F
F
EP globale non rinnovabile:
125.00 kW h/m² anno
EP globale rinnovabile:
125.00 kW h/m² anno
EP invernale del fabbricato:
EP estiva del fabbricato:
Anno di costruzione:
2010
Riscaldamento:
Autonomo
Tipo impianto:
A pavimento
Tipo alimentazione:
Metano

Ti interessa visionare l'immobile?

Fissa un appuntamento  Fissa un appuntamento

Richiedi informazioni

* Questi campi sono obbligatori

Calcola il tuo mutuo

Semplice e senza impegno
Anticipo

( % )
Mutuo

( % )

pochi semplici passi

inserisci i tuoi dati
Questionario completato
Grazie per aver richiesto un appuntamento senza impegno con un nostro Consulente del Credito e Assicurativo.

Hai inserito correttamente tutti i dati necessari e a breve riceverai una e-mail con un link da convalidare per inviare i tuoi dati.
Affiliato
Sviluppo Immobiliare Casorate Srl
Via Italo Santini, 3 27022 Casorate Primo (PV)

Il nostro staff


  • Marco Costa
    Collaboratore

  • Francesco Ferragina
    Responsabile

  • Giulio Lodigiani
    Collaboratore

  • Emanuela Allegretta
    Coordinatrice

  • Nicolò Karol Macrina
    Collaboratore

  • Vincenzo Nitti
    Collaboratore

  • Simone Paonessa
    Collaboratore

  • Luca Cordisco
    Affiliato
Via Italo Santini, 3 27022 Casorate Primo (PV)
Zona: Casorate Primo-Motta Visconti-Trovo-Trivolzio-Bereguardo-Besate
Mostra su mappa
Orari: Lunedì / Venerdì dalle 09.00 alle 20.00 -- Sabato 09.00 alle 17.00
Affiliato
Sviluppo Immobiliare Casorate Srl
Via Italo Santini, 3 27022 Casorate Primo (PV)

2025 Tecnocasa Franchising S.p.A. - P. IVA 08365160152 - Via Monte Bianco 60/A 20089 Rozzano (MI). Ogni agenzia ha un proprio titolare ed è autonoma. Privacy policy | Policy utilizzo | Cookie policy