Villa a schiera in vendita

Motta Visconti, Via Caduti in Russia
€ 189.000
3 locali 3 locali
130 Mq 130 Mq
2 bagni 2 bagni

Villa a schiera in vendita

Motta Visconti, Via Caduti in Russia

Descrizione annuncio

VILLA A SCHIERA CON BOX DOPPIO!

Via Caduti in Russia– Motta Visconti(MI). A pochi passi dal centro cittadino, proponiamo VILLA a schiera su 3 LIVELLI con box doppio.

La zona è tranquilla e ben servita, fornita di tutti i servizi di prima necessità come supermercati, farmacie, scuole, poste, bar e ristoranti.
La zona risulta un ottimo compromesso per chi desidera vivere a breve distanza dalla città metropolitana milanese ed in uno dei comuni verdi dell'hinterland. La qualità della vita è alta e non mancano i servizi, ciò contribuisce a rendere questi paesi la meta preferita dalle famiglie in cerca di tranquillità e sicurezza per i propri figli.


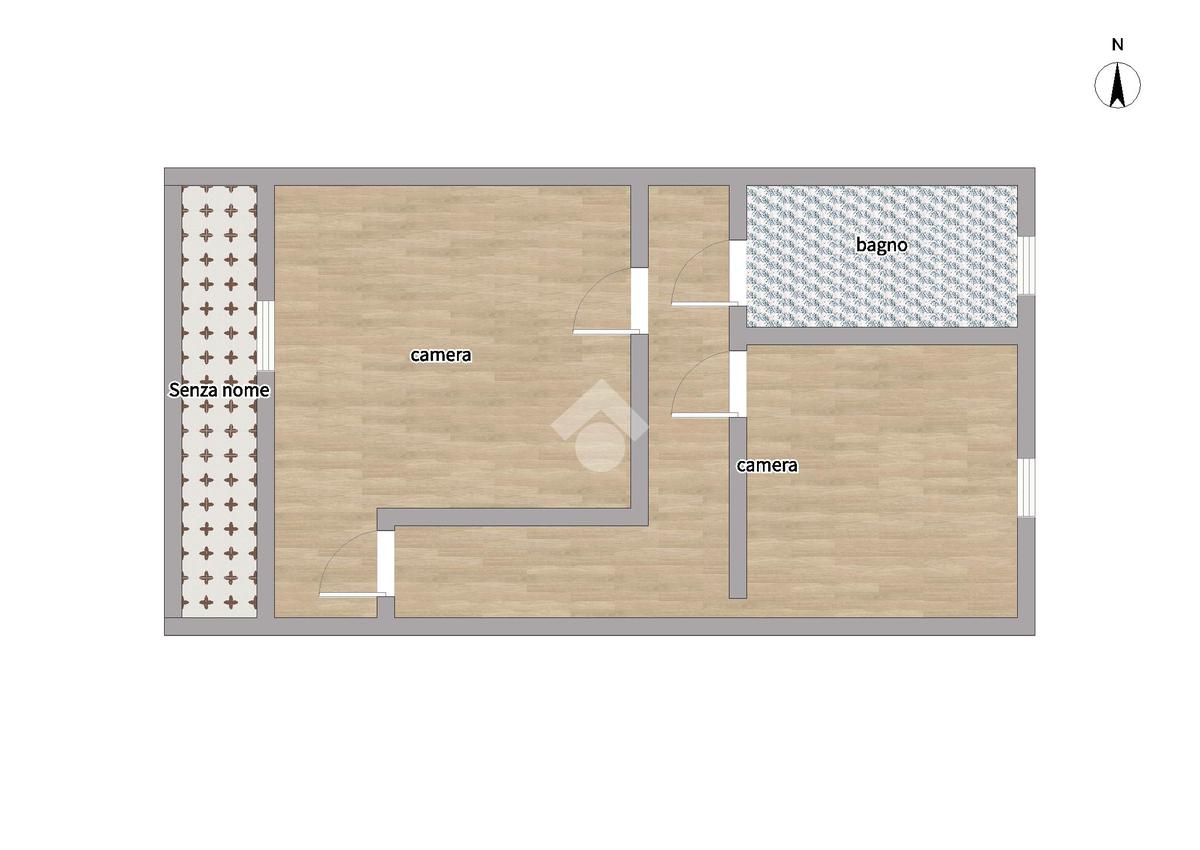
L’ingresso è dal piano terra, direttamente nella zona giorno caratterizzata da un luminoso soggiorno con cucina abitabile e accesso al giardino e servizio.

Mediante una comoda scala, si accede alla zona notte, posta al piano primo, composta da due camere da letto di cui una con balcone con affaccio esterno e secondo servizio finestrato.

Infine, il piano interrato è caratterizzato da un’ampia taverna, ripostiglio sotto scala e box doppio .

L’immobile si presenta in discrete condizioni interne.

Riscaldamento autonomo.

Soluzione ideale per famiglie grazie all'ottimo contesto ed alla tranquillità della zona.

Le immagini pubblicate sono state ritoccate con l'aggiunta di mobili a scopo illustrativo e non costituiscono un'offerta contrattuale.

OGNI AGENZIA HA UN PROPRIO TITOLARE ED E' AUTONOMA. Le Info non sono contrattuali.

Mostra tutto

Nelle vicinanze

Trasporto pubblico Trasporto pubblico
Via De Gasperi - Via Borgomaneri (Motta Visconti)
Via De Gasperi - Via Borgomaneri (Motta Visconti)
560 m
Via Soriani, (Motta Visconti)
Via Soriani, (Motta Visconti)
840 m
Scuole Scuole
Scuola Secondaria di Primo Grado Scotti
1,0 Km
Istituto Comprensivo Statale Ada Negri
1,3 Km
Farmacia Farmacia
Farmacia
760 m
Parafarmacia Muzzio
820 m
Farmacia Mariani
880 m
Supermercati Supermercati
Simply
810 m
Negozi Negozi
il Vecchio Forno
730 m
Negozi
830 m
Panetteria Pasticceria Conti
890 m
La Bottega Simply
900 m
Bar Bar
Bar
810 m
Bar Centrale
810 m
Wine bar
840 m
Dance Cafè
850 m
Bar Manu
850 m
Ristoranti Ristoranti
River 67
220 m
Stuzzipizza
660 m
Antica trattoria dell'isola
700 m
Pizze Cersi
740 m
Pizze Nico
830 m
Mostra tutto

Caratteristiche

Rif.:
61116169
Piano:
Su più livelli di 1
Totale piani:
1
Box:
1
Balconi:
1
Camere da letto:
2
Mostra tutto
Prezzo Prezzo
€ 189.000
Rata mutuo Rata mutuo
€ 874 / mese
Spese annue Spese annue
€ 0
Proponi il tuo prezzoProponi il tuo prezzo

Classe Energetica

D
D
D
D
D
D
D
D
D
EP globale non rinnovabile:
125.00 kW h/m² anno
EP globale rinnovabile:
125.00 kW h/m² anno
EP invernale del fabbricato:
EP estiva del fabbricato:
Anno di costruzione:
1990
Riscaldamento:
Autonomo
Tipo impianto:
A radiatori
Tipo alimentazione:
Metano

Ti interessa visionare l'immobile?

Fissa un appuntamento  Fissa un appuntamento

Richiedi informazioni

* Questi campi sono obbligatori

Calcola il tuo mutuo

Semplice e senza impegno
Anticipo

( % )
Mutuo

( % )

pochi semplici passi

inserisci i tuoi dati
Questionario completato
Grazie per aver richiesto un appuntamento senza impegno con un nostro Consulente del Credito e Assicurativo.

Hai inserito correttamente tutti i dati necessari e a breve riceverai una e-mail con un link da convalidare per inviare i tuoi dati.
Affiliato
Sviluppo Immobiliare Casorate Srl
Via Italo Santini, 3 27022 Casorate Primo (PV)

Il nostro staff


  • Marco Costa
    Collaboratore

  • Francesco Ferragina
    Responsabile

  • Giulio Lodigiani
    Collaboratore

  • Emanuela Allegretta
    Coordinatrice

  • Nicolò Karol Macrina
    Collaboratore

  • Vincenzo Nitti
    Collaboratore

  • Simone Paonessa
    Collaboratore

  • Luca Cordisco
    Affiliato
Via Italo Santini, 3 27022 Casorate Primo (PV)
Zona: Casorate Primo-Motta Visconti-Trovo-Trivolzio-Bereguardo-Besate
Mostra su mappa
Orari: Lunedì / Venerdì dalle 09.00 alle 20.00 -- Sabato 09.00 alle 17.00
Affiliato
Sviluppo Immobiliare Casorate Srl
Via Italo Santini, 3 27022 Casorate Primo (PV)

2025 Tecnocasa Franchising S.p.A. - P. IVA 08365160152 - Via Monte Bianco 60/A 20089 Rozzano (MI). Ogni agenzia ha un proprio titolare ed è autonoma. Privacy policy | Policy utilizzo | Cookie policy