Bilocale in vendita

Casorate Primo, Via Filippo Piccaluga
€ 175.000
2 locali 2 locali
80 Mq 80 Mq
1 bagno 1 bagno

Bilocale in vendita

Casorate Primo, Via Filippo Piccaluga

Descrizione annuncio

NUOVA COSTRUZIONE IN CLASSE A+, CON GIARDINO E BOX!

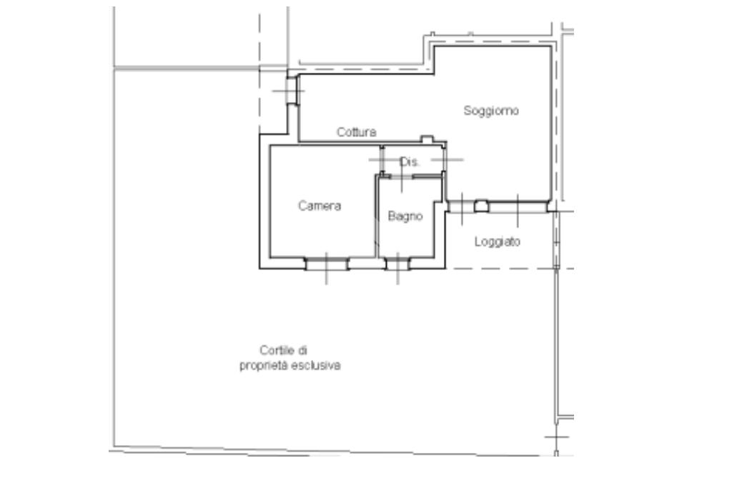
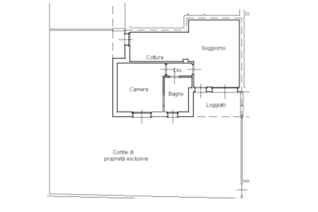
Via Piccaluga , Casorate Primo (PV): A 5 minuti dal centro paese, immediatamente adiacente alla via Sant’Agostino, dove ci sono le fermate degli autobus Z509 e z516 che in meno di 40 minuti conducono a Milano e, nell'altra direzione ai vari comuni adiacenti, proponiamo in contesto signorile del 2019 in classe energetica A+, ottimamente tenuto nelle parti comuni , un AMPIO BILOCALE con GIARDINO ANGOLARE. La zona risulta tranquilla e ben servita, fornita di tutti i servizi di prima necessità come supermercati, farmacie, scuole, poste, bar e ristoranti. L'appartamento risulta essere così composto: Ingresso che si apre subito nell'ampia zona living con cucina a vista. Proseguendo, tramite disimpegno, accediamo alla zona notte, caratterizzata da un’ampia camera da letto con punto luce un comodo bagno finestrato con doccia. Riscaldamento a pavimento. L'appartamento si presenta in OTTIME CONDIZIONI con finiture di pregio, infissi in legno con doppi vetri, pavimentazione in gres effetto legno e porta blindata, il tutto circondato dall’ampio giardino caratterizzato da una zona relax con gazebo e piscina. Plus non indifferente è sicuramente la classe energetica A+, la quale permette di ottimizzare i consumi. Compreso nel prezzo, completano la proprietà un comodo box auto di pertinenza.

Soluzione ideale per famiglie grazie all'ottimo contesto ed alla tranquillità della zona.

Le immagini pubblicate sono state ritoccate con l'aggiunta di mobili a scopo illustrativo e non costituiscono un'offerta contrattuale.

OGNI AGENZIA HA UN PROPRIO TITOLARE ED E' AUTONOMA. Le Info non sono contrattuali.

Mostra tutto

Nelle vicinanze

Trasporto pubblico Trasporto pubblico
Via Europa (Bubbiano)
Via Europa (Bubbiano)
2,6 Km
Via Soriani, (Motta Visconti)
Via Soriani, (Motta Visconti)
2,9 Km
Scuole Scuole
Istituto Comprensivo Statale Ada Negri
2,3 Km
Scuola Secondaria di Primo Grado Scotti
2,6 Km
Scuole
2,9 Km
Farmacia Farmacia
Farmacia
1,6 Km
Farmacia Mariani
2,8 Km
Parafarmacia Muzzio
2,9 Km
Ospedali Ospedali
ospedale C. Mira
660 m
Supermercati Supermercati
Conad
820 m
Simply Market
1,2 Km
Supermercati
1,6 Km
Negozi Negozi
La Bottega Simply
850 m
La Fornarina
2,8 Km
Panetteria Pasticceria Conti
2,9 Km
il Vecchio Forno
2,9 Km
Negozi
2,9 Km
Bar Bar
Wine Bar
2,3 Km
Bar Kandinsky
2,3 Km
Il Bar Girasole
2,6 Km
Bar Sant'Anna
2,7 Km
Bar
2,8 Km
Ristoranti Ristoranti
Antica osteria Bellaria
2,1 Km
L'Ancora
2,2 Km
Arca di Noe
2,3 Km
Bella Napoli 3
2,7 Km
Pizze Nico
2,9 Km
Mostra tutto

Caratteristiche

Rif.:
61108731
Piano:
Terra con giardino di 1
Totale piani:
1
Box:
1
Camere da letto:
1
Arredamento:
Assente
Mostra tutto
Prezzo Prezzo
€ 175.000
Rata mutuo Rata mutuo
€ 809 / mese
Spese annue Spese annue
€ 700
Proponi il tuo prezzoProponi il tuo prezzo

Classe Energetica

A1
A1
A1
A1
A1
A1
A1
A1
A1
EP globale non rinnovabile:
50.00 kW h/m² anno
EP globale rinnovabile:
50.00 kW h/m² anno
EP invernale del fabbricato:
EP estiva del fabbricato:
Anno di costruzione:
2018
Riscaldamento:
Autonomo
Tipo impianto:
A pavimento
Tipo alimentazione:
Metano

Ti interessa visionare l'immobile?

Fissa un appuntamento  Fissa un appuntamento

Richiedi informazioni

* Questi campi sono obbligatori

Calcola il tuo mutuo

Semplice e senza impegno
Anticipo

( % )
Mutuo

( % )

pochi semplici passi

inserisci i tuoi dati
Questionario completato
Grazie per aver richiesto un appuntamento senza impegno con un nostro Consulente del Credito e Assicurativo.

Hai inserito correttamente tutti i dati necessari e a breve riceverai una e-mail con un link da convalidare per inviare i tuoi dati.
Affiliato
Sviluppo Immobiliare Casorate Srl
Via Italo Santini, 3 27022 Casorate Primo (PV)

Il nostro staff


  • Marco Costa
    Collaboratore

  • Francesco Ferragina
    Responsabile

  • Giulio Lodigiani
    Collaboratore

  • Emanuela Allegretta
    Coordinatrice

  • Nicolò Karol Macrina
    Collaboratore

  • Vincenzo Nitti
    Collaboratore

  • Simone Paonessa
    Collaboratore

  • Luca Cordisco
    Affiliato
Via Italo Santini, 3 27022 Casorate Primo (PV)
Zona: Casorate Primo-Motta Visconti-Trovo-Trivolzio-Bereguardo-Besate
Mostra su mappa
Orari: Lunedì / Venerdì dalle 09.00 alle 20.00 -- Sabato 09.00 alle 17.00
Affiliato
Sviluppo Immobiliare Casorate Srl
Via Italo Santini, 3 27022 Casorate Primo (PV)

2025 Tecnocasa Franchising S.p.A. - P. IVA 08365160152 - Via Monte Bianco 60/A 20089 Rozzano (MI). Ogni agenzia ha un proprio titolare ed è autonoma. Privacy policy | Policy utilizzo | Cookie policy