Quadrilocale in vendita

Bubbiano, Via G. Garibaldi
€ 249.000
3 locali 3 locali
160 Mq 160 Mq
2 bagni 2 bagni

Quadrilocale in vendita

Bubbiano, Via G. Garibaldi

Descrizione annuncio

APPARTAMENTO IN VILLA IN CENTRO PAESE!

Via Giuseppe Garibaldi 3 Bubbiano (MI)

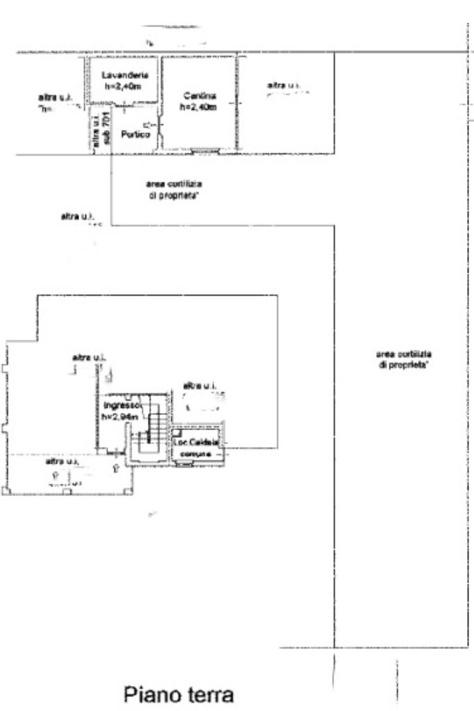
A pochi minuti dal centro paese e a pochi metri dalla fermata dell’autobus Z509 che in meno di 40minuti collegano al centro della città di Milano (Famagosta M2) oltre che, nell'altra direzione, anche ai vari comuni adiacenti, proponiamo in vendita un APPARTAMENTO IN VILLA BIFAMILIARE libera su tre lati, sviluppata su due livelli, con giardino esclusivo, locale deposito, box doppio e locale lavanderia e caldaia.

La zona è tranquilla e ben servita, fornita di tutti i servizi di prima necessità come supermercati, farmacie, scuole, poste, bar e ristoranti.

La zona risulta un ottimo compromesso per chi desidera vivere a breve distanza dalla città metropolitana milanese ed in uno dei comuni verdi dell'hinterland. La qualità della vita è alta e non mancano i servizi, ciò contribuisce a rendere questi paesi la meta preferita dalle famiglie in cerca di tranquillità e sicurezza per i propri figli.

La soluzione risulta essere così composta:

Ingresso al piano terra con scala che ci porta al piano primo composto dalla zona giorno con doppia esposizione, terrazzo e split per l’aria climatizzata , proseguendo tramite disimpegno troviamo la prima camera matrimoniale provvista anch’essa di split per l’aria climatizzata e caloriferi.

Sempre tramite disimpegno troviamo la seconda camera e proseguendo la terza, questa volta matrimoniale con bagno privato con box doccia.

Proseguendo, troviamo il bagno padronale, finestrato con caloriferi e dotato di vasca e box doccia infine la cucina di generose dimensioni con tanto di affaccio sul balconcino di pertinenza.

L’immobile è circondato su tre lati da giardino esclusivo di proprietà, con portico, locale lavanderia, locale deposito e box doppio.

L’immobile si presenta in discrete condizioni interne, da personalizzare in base alle proprie esigenze, in particolare gli infissi sono allo stato originale tranno quello della cucina che è in PVC doppio vetro effetto legno.

Riscaldamento centralizzato.

Soluzione ideale per famiglie grazie all'ottimo contesto ed alla tranquillità della zona.

OGNI AGENZIA HA UN PROPRIO TITOLARE ED E' AUTONOMA. Le Info non sono contrattuali.

Mostra tutto

Nelle vicinanze

Trasporto pubblico Trasporto pubblico
Via Europa (Bubbiano)
Via Europa (Bubbiano)
280 m
Via Circonvallazione - Via Dante (Rosate)
Via Circonvallazione - Via Dante (Rosate)
2,3 Km
Ricariche auto elettriche Ricariche auto elettriche
Rosate Gallotti | EnelX
2,3 Km
Rosate Circonvallazione | EnelX
2,8 Km
Scuole Scuole
Scuole
720 m
Scuola Secondaria Alessandro Manzoni
2,1 Km
ISTITUTO COMPRENSIVO STATALE ALESSANDRO MANZONI
2,3 Km
Farmacia Farmacia
Farmacia Capararo Chiesa
2,4 Km
Parafarmacia
2,5 Km
Farmacia Santo Stefano snc
2,8 Km
Farmacia
2,8 Km
Ospedali Ospedali
ospedale C. Mira
2,2 Km
Supermercati Supermercati
Simply Market
1,8 Km
Conad
2,5 Km
Supermercati
2,8 Km
Dpiù discount
2,8 Km
Negozi Negozi
Thirty Seven
1,2 Km
La Bottega Simply
1,9 Km
Samarati Abbigliamento
2,4 Km
Panificio Rosate
2,4 Km
Marina Abbigliamento Donna
2,4 Km
Bar Bar
Bar 2001
2,2 Km
Ristoranti Ristoranti
Antica osteria Bellaria
1,9 Km
Arca di Noe
2,3 Km
Agriturismo e Punto Parco
2,3 Km
Sotto il Campanile
2,4 Km
Pizzeria Cavour
2,5 Km
Mostra tutto

Caratteristiche

Rif.:
61202789
Piano:
Su più livelli di 1
Totale piani:
1
Box:
1
Terrazzi:
1
Camere da letto:
3
Mostra tutto
Prezzo Prezzo
€ 249.000
Rata mutuo Rata mutuo
€ 1.182 / mese
Spese annue Spese annue
€ 0
Proponi il tuo prezzoProponi il tuo prezzo

Classe Energetica

F
F
F
F
F
F
F
F
F
EP globale non rinnovabile:
125.00 kW h/m² anno
EP globale rinnovabile:
125.00 kW h/m² anno
EP invernale del fabbricato:
EP estiva del fabbricato:
Anno di costruzione:
1990
Riscaldamento:
Autonomo
Tipo impianto:
A radiatori
Tipo alimentazione:
Metano

Ti interessa visionare l'immobile?

Fissa un appuntamento  Fissa un appuntamento

Richiedi informazioni

Clicca su Leggi per aprire l'informativa
* Questi campi sono obbligatori

Calcola il tuo mutuo

Semplice e senza impegno
Anticipo

( % )
Mutuo

( % )

pochi semplici passi

inserisci i tuoi dati
Questionario completato
Grazie per aver richiesto un appuntamento senza impegno con un nostro Consulente del Credito e Assicurativo.

Hai inserito correttamente tutti i dati necessari e a breve riceverai una e-mail con un link da convalidare per inviare i tuoi dati.
Affiliato
Sviluppo Immobiliare Casorate Srl
Via Italo Santini, 3 27022 Casorate Primo (PV)

Il nostro staff


  • Marco Costa
    Responsabile

  • Antonio Junior Galluzzo
    Collaboratore

  • Mohamed El Hajji
    Collaboratore

  • Emanuela Allegretta
    Coordinatrice

  • Vincenzo Nitti
    Collaboratore

  • Simone Paonessa
    Collaboratore

  • Sara Smedile
    Collaboratrice

  • Luca Cordisco
    Affiliato
Via Italo Santini, 3 27022 Casorate Primo (PV)
Zona: Casorate Primo-Motta Visconti-Trovo-Trivolzio-Bereguardo-Besate
Mostra su mappa
Orari: Lunedì / Venerdì dalle 09.00 alle 20.00 -- Sabato 09.00 alle 17.00
Affiliato
Sviluppo Immobiliare Casorate Srl
Via Italo Santini, 3 27022 Casorate Primo (PV)

2026 Tecnocasa Franchising S.p.A. - P. IVA 08365160152 - Via Monte Bianco 60/A 20089 Rozzano (MI). Ogni agenzia ha un proprio titolare ed è autonoma. Privacy policy | Policy utilizzo | Cookie policy